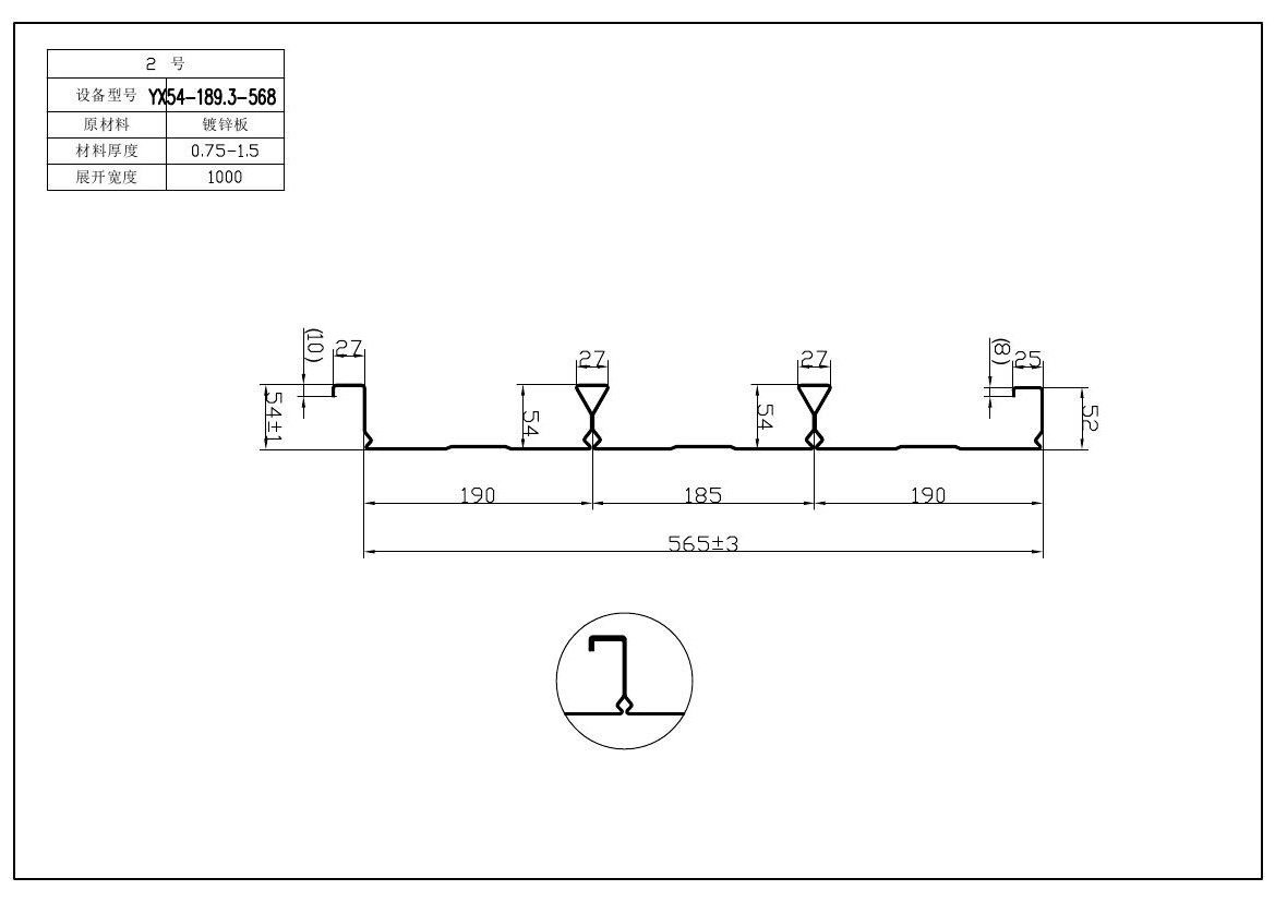
厂家带你了解YX54-189.3-568闭口楼承板
YX54-189.3-568闭口楼承板,也叫压型钢板、钢承板、钢楼承板,是采用镀锌钢板经辊压冷弯成型,其截面成V型、U型、梯形或类似这几种形状的波形,主要用作性模板,也可被选为其他用途。
一、YX54-189.3-568楼承板主要特点
1:适应主体钢结构快速施工的要求,能够在短时间内提供坚定的作业平台,并可采用多个楼层铺设压型钢板,分层浇筑混凝土板的流水施工。
2:在使用阶段楼承板作为混凝土楼板的受拉钢筋,也提高了楼板的刚度,节省了钢筋和混凝土的用量。
3:压型板表面压纹使楼承板与混凝土之间产生大的结合力,使二者形成整体,配以加劲肋,这样楼承板系统就会具有高强的承载力。
4:在悬臂条件下,楼承板仅作为性模板。悬挑的长度可根据楼承板的截面特性来定。为了防止悬挑板的开裂,需在支座处依结构工程师的设计配上负筋。
二、YX54-189.3-568闭口楼承板与普通开口板相比安装技术优势
1:闭口楼承板严格按照设计铺板图在工厂加工,排板顺序均已编号,现场施工无需切割和补板,有利于钢构公司当场安装。
2:闭口楼承板排板时只要按跨距排,与钢梁顺接时,由于板底光滑,有足够与钢梁实接面积。因此不需处理可直接铺过去。
3:闭口楼承板可以代替下层钢筋,减少现场钢筋制作量,现场劳动量减轻,施工速度变快。同时取消原设计下层钢筋,可为楼板中铺设电线套管提供更大空间。
采用闭口楼承板与开口型钢承板组合楼板相比,可以取消板底防火涂料,完全替代下层钢筋,并可减薄楼板厚度,节省混凝土用量,闭口楼承板独特的悬吊系统还可节约机电管道安装成本。另外由于上述优势可明显加快加工速度,缩短工期。同时降低工程的直接成本还降低工程管道费用。
4:闭口楼承板因板底平整,无论与钢梁横搭还是顺搭,均能与钢梁上翼板充分结合,因此钢梁上翼板顶面无需喷防火涂料。而开口型钢承板与钢梁之间具有空洞,需做肩塞补满空洞。
5:开口板在端口处应封堵板,以免浇筑混凝土进从板底开口漏浆,而闭口楼承板因腹板闭合而不用端头堵板。


上一篇:楼承板新型材料寿命短的原因
下一篇: 什么原因导致楼承板生产硬度过低?



